Entdecken Sie Ihr Traumhaus in Neunkirchen-Seelscheid! Dieses charmante Einfamilienhaus bietet alles, was das Herz begehrt. Mit einer großzügigen Wohnfläche von 162 m² auf 3 Etagen und einem beeindruckenden Grundstück von 950 m², davon 600 m² Gartenfläche, ist dieses Haus ein wahres Paradies für Naturliebhaber und Familien.
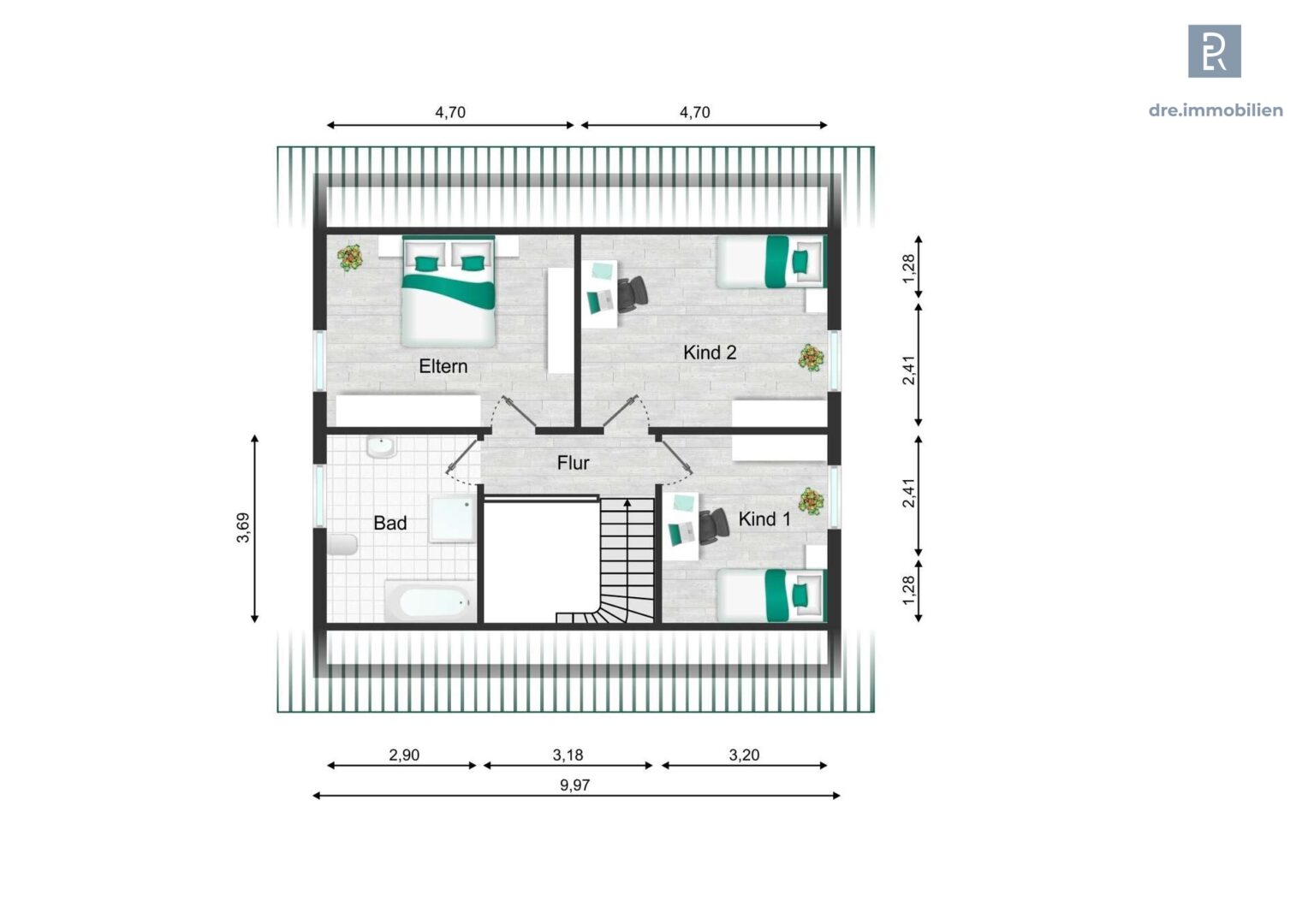
Das Haus verfügt über 6 Zimmer, davon 4 geräumige Schlafzimmer und 2 moderne Bäder. Die letzte Modernisierung fand im Jahr 2025 statt, sodass das Haus kontinuierlich instandgehalten wurde und Sie sich sofort wie zu Hause fühlen werden.
Besonders hervorzuheben ist die moderne, helle Einbauküche und der Kamin, der für gemütliche Abende sorgt. Der großzügige Garten lädt zu entspannten Stunden im Grünen ein und bietet viel Platz für Ihre kreativen Ideen.
Erleben Sie ein Zuhause, in dem sich Komfort und Gemütlichkeit vereinen. Dieses Einfamilienhaus in Neunkirchen-Seelscheid wartet darauf, von Ihnen entdeckt und geliebt zu werden.
Fragen Sie noch heute das Lang-Exposé an. Wir freuen uns auf Ihre Anfrage.

