Ihr neues Familienzuhause in Hürth – Raum für Leben, Lachen und gemeinsame Momente
Dieses liebevoll gepflegte Einfamilienhaus vereint großzügiges Wohnen, eine durchdachte Raumaufteilung und eine ruhige Lage – ideal für Familien, die sich den Traum vom eigenen Zuhause erfüllen möchten.
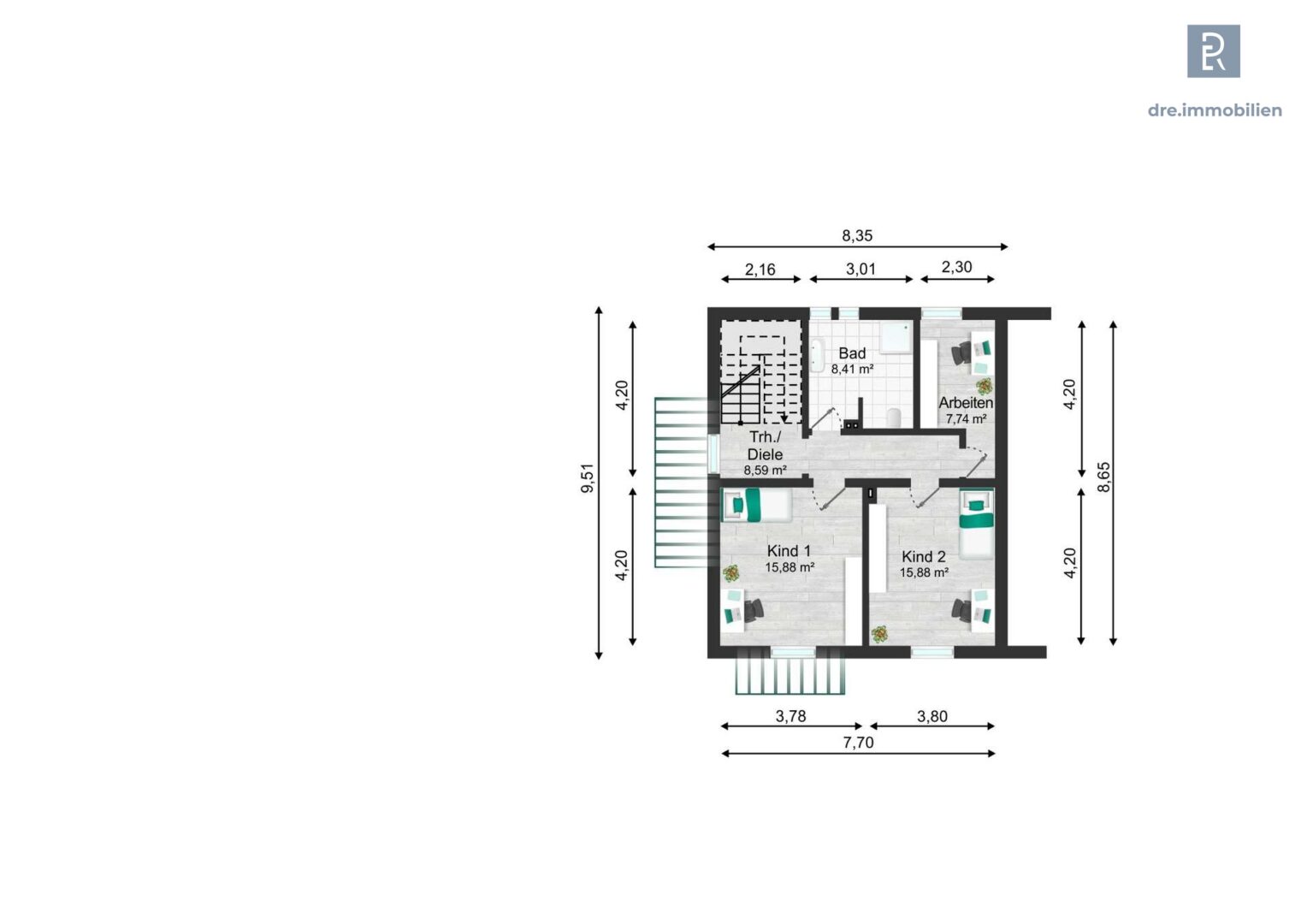
Auf rund 161 m² Wohnfläche, verteilt auf drei Etagen, entfaltet sich ein Zuhause, das Platz für jede Lebensphase bietet. Insgesamt sechs Zimmer schaffen vielfältige Möglichkeiten – ob Kinderzimmer, Homeoffice oder persönlicher Rückzugsort.
Ein Haus, das mit dem Familienleben mitwächst:
Bereits beim Betreten empfängt Sie ein einladender Eingangsbereich mit Treppenaufgang. Im Erdgeschoss erwartet Sie ein heller, offener Wohn- und Essbereich mit angrenzender Küche – der perfekte Ort für gemeinsame Mahlzeiten, Spieleabende oder entspannte Stunden mit der Familie. Kurze Wege und offene Strukturen schaffen hier ein modernes, kommunikatives Wohngefühl. Ergänzt wird diese Etage durch ein Badezimmer mit Badewanne.
Im 1. Obergeschoss finden Sie drei flexibel nutzbare Zimmer: Zwei eignen sich hervorragend als Kinderzimmer, während ein weiteres Zimmer ideal als Homeoffice oder Hobbyraum dient – perfekt für das heutige Familienleben. Ein großzügiges Badezimmer mit Dusche sorgt für zusätzlichen Komfort im Alltag.
Das Dachgeschoss bietet zwei weitere Schlafzimmer und damit zusätzliche Rückzugsorte für Eltern oder größere Kinder. Ein echtes Highlight ist das großzügige Hauptschlafzimmer mit sichtbarem Dachstuhl – ein Raum mit besonderem Charakter und gemütlicher Atmosphäre. Ein separates WC rundet diese Ebene ab.
Das Haus wurde zuletzt 2024 (neue Einbauküche) modernisiert und präsentiert sich in einem sehr gepflegten Zustand. Hochwertige Parkettböden sorgen für eine warme Wohnatmosphäre und unterstreichen den einladenden Charakter des Hauses.
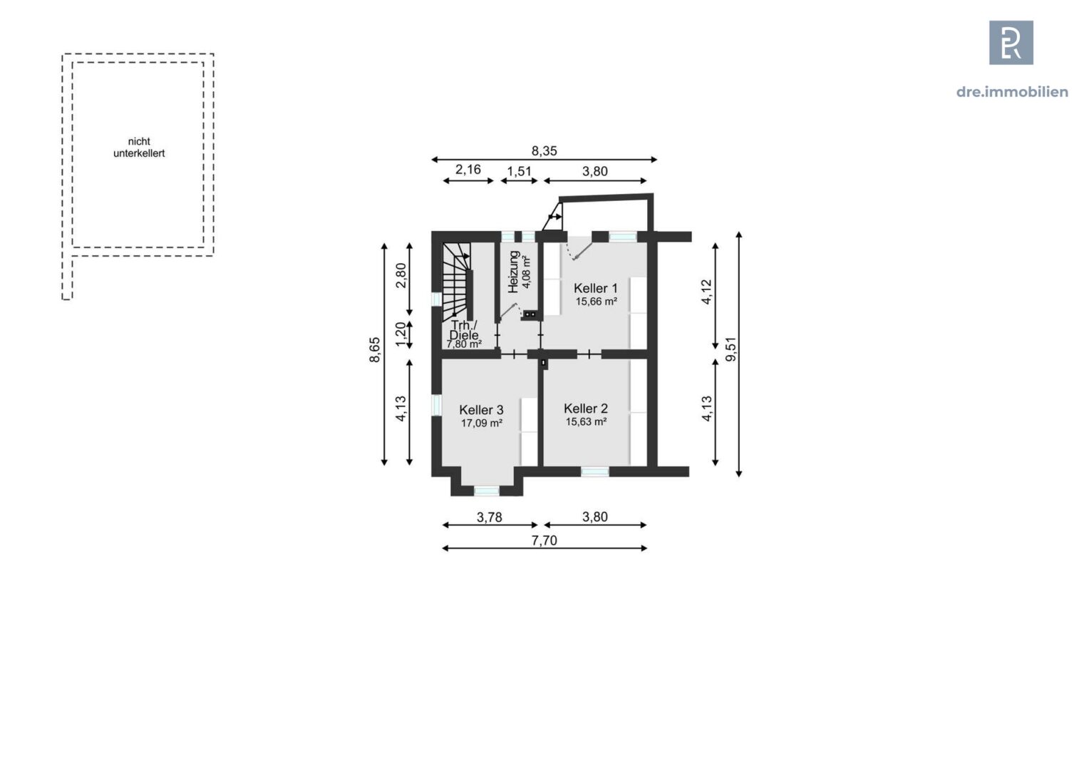
Auch praktisch überzeugt die Immobilie: Ein Keller sowie zusätzliche Abstellflächen bieten ausreichend Stauraum für alles, was im Familienalltag Platz finden muss. Die Gasheizung gewährleistet eine zuverlässige und effiziente Wärmeversorgung.
Das 384 m² große Grundstück lädt dazu ein, das Leben nach draußen zu verlagern – ob spielende Kinder im Garten, entspannte Grillabende auf der Terrasse oder einfach ein ruhiger Moment im Grünen.
Fazit:
Ein Zuhause, das nicht nur Platz bietet, sondern Lebensqualität schafft – perfekt für Familien, die Wert auf Raum, Ruhe und ein harmonisches Wohnumfeld legen.
### Fordern Sie für weitere Bilder das Langexposé an. ###

